ООО «Техтранссервис» – крупнейшая в России компания, оказывающая услуги ремонта технологического оборудования, асфальтосмесительных установок. В сфере ремонта АБЗ мы накопили огромный опыт и рады оказать Вам следующие услуги:
Агрегат минерального порошка и пыли – сложное технического устройство и при его ремонте не обойтись без команды профессионалов ООО «Техтранссервис».
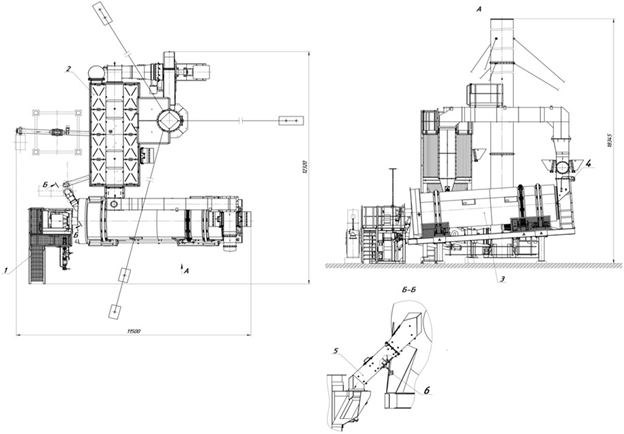
Устройство агрегата минерального порошка и пыли:
Схематическое изображение агрегата асфальтобетонного завода КДМ 208.
Перечень запчастей, узлов агрегата порошка и пыли (КДМ 208):
| Поз. | Обозначение | Наименование | Масса (кг) | Габариты (ДхШхВ), мм | Кол-во на изделие |
| 1. | КДМ2087 70.00.100 | Лоток | 77 | 795 ×455 ×1550 | 1 |
| 2. | КДМ2087 70.00.200 | Шнек | 343 | l=5350 | 1 |
| 3. | КДМ2087 70.00.250 | Чехол | 2 | Ø250 ×1500 | 1 |
| 4. | КДМ2087 70.00.300 | Шнек утилизации пыли | 335 | l=5360 | 1 |
| 5. | КДМ2087 70.03.000 | Элеватор | 2400 | l=19380 | 1 |
| 6. | КДМ2087 70.11.000 | Бункер минерального порошка | 3920 | Ø2470 ×11455 | 1 |
| 7. | КДМ2087 70.12.000 | Бункер пыли | 6265 | Ø2470 ×11092 | 1 |
| 8. | КДМ2057 77.00.220 | Затвор | 10,5 | 345,5 ×440 ×160 | 1 |
| 9. | КДМ2087 57.00.003 | Чехол | 0,18 | Ø390 ×200 | 2 |
| 10. | ДС-185/374231044 | Клапан дисковый V2 FS.250.GBN | – | – | 1 |
| 11. | ДС-185/255711019 | Трубопровод TRN 10/8 | – | – | 3 |
| 12. | ДС-185/224722013 | Шланг Vulkano | – | l=1 м | 1 |
| l=1 м l=3 м | 1 |
Заказать ремонт агрегата пыли и минерального порошка
Мы профессионально оказываем услуги перевозки, монтажа, установки, пусконаладки, диагностики любых агрегатов. Наш менеджер проконсультирует по любой неисправности и озвучит цену ремонта.




