Ремонт смесительного агрегата АБЗ
ООО «Техтранссервис» – крупнейшая в России компания, оказывающая услуги ремонта технологического оборудования, асфальтосмесительных установок. В сфере ремонта АБЗ мы накопили огромный опыт и рады оказать Вам следующие услуги:
Смесительный агрегат – сложное технического устройство и при его ремонте не обойтись без команды профессионалов ООО «Техтранссервис».
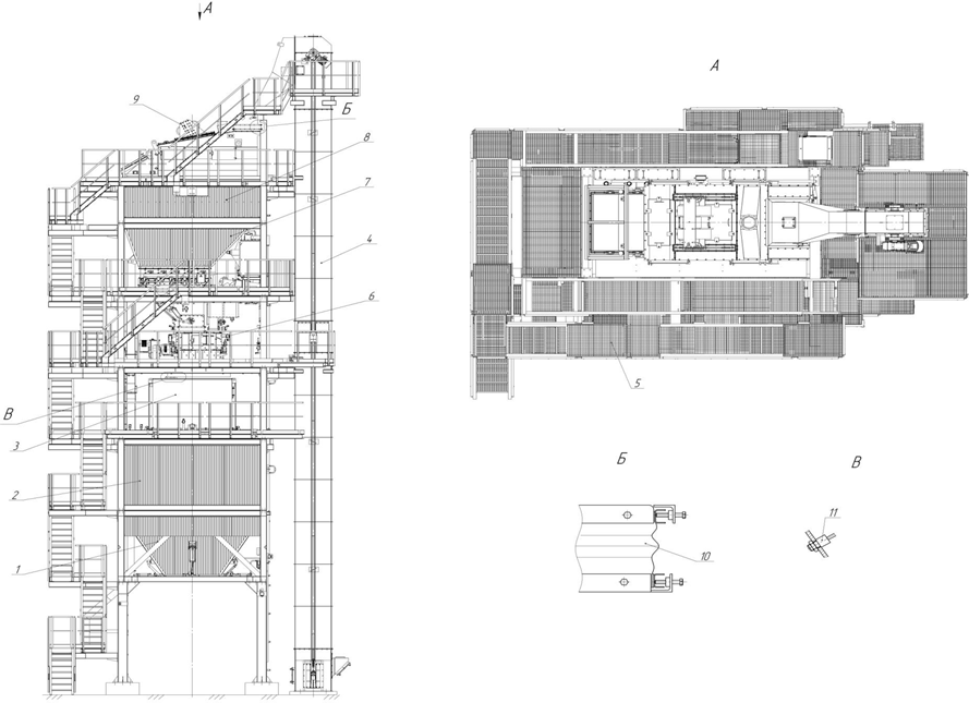
Устройство смесительного агрегата асфальтобетонного завода:
Схематическое изображение смесительного агрегата асфальтобетонного завода КДМ 208.
Перечень запчастей, узлов смесительного агрегата (КДМ 208):
| Поз. | Обозначение | Наименование | Масса (кг) | Габариты (ДхШхВ), мм | Кол-во на изделие |
| 1. | КДМ2087 50.10.000 | Блок нижний | 3650 | 4715 × 2450 ×2558 | 1 |
| 2. | КДМ2087 50.11.000 | Вставка | 3620 | 4500 ×2435 ×2558 | 1 |
| 3. | КДМ2087 50.12.000 | Блок тележки | 2950 | 4590 × 2435 ×2530 | 1 |
| 4. | КДМ2087 51.01.000 | Элеватор | 4850 | 3260 ×3135 ×22000 | 1 |
| 5. | КДМ2087 53.00.000 | Установка лестниц, площадок и перил | 13800 | – | 1 |
| 6. | КДМ2087 55.00.000 | Блок смесителя и дозаторов | 7650 | 4715 ×2467 ×2805 | 1 |
| 7. | КДМ2087 57.00.000 | Блок средний | 4510 | 4590 ×2435 ×2590 | 1 |
| 8. | КДМ2087 58.00.000 | Блок верхний | 3300 | 4590 × 2435 ×2046 | 1 |
| 9. | КДМ2087 59.00.000 | Блок грохота | 3365 | 4380 ×1912 ×2115 | 1 |
| 10. | КДМ2087 50.00.001 | Чехол | 1,4 | 330 ר1370 | 1 |
| 11. | ДС-185/432123002 | Пирометр | – | 1 |
Заказать ремонт смесительного агрегата АБЗ
Мы профессионально оказываем услуги перевозки, монтажа, установки, пусконаладки, диагностики смесительных агрегатов. Наш менеджер проконсультирует по любой неисправности и озвучит цену ремонта.

